 | | Odvážná školačka sestoupila zhroucenou chodbou pod zem do míst, kam posledních 20 let nevkročila lidská noha. Nemůže uvěřit svým očím při pohledu na úzkokolejnou trať pod povrchem Brna. |
Za domem Hlinky 98 v brněnských Pisárkách, zbouraným mezi roky 2004 a 2007, se nachází rozsáhlé dva vinné sklepy s vlastní úzkokolejnou dráhou pro přepravu vína. Západní sklep zasahuje až pod pozemek domu Hlinky 100 a lze proto předpokládat, že byl původně propojen právě s ním.
Historie
Datum vzniku sklepů známe v případě domu č. 98 velmi přesně díky vročení na kamenné desce nad portálem vstupu, které prozrazuje, že byl sklep postaven mezi roky 1833 a 1834. Ve stejném roce byl postaven i dům, nejpravděpodobněji na doposud nezastavěném místě a nákladem Valentina Falkensteinera, který se později stal významným brněnským podnikatelem. Sklep byl sekundárně (pravděpodobně nejpozději v období 2. světové války) propojen spojovací chodbou se sousedním sklepem za domem Hlinky č. 100 a (vzhledem k typu použitých točen a vozíků o rozchodu 600 mm) zřejmě ve stejném období byla v obou sklepech vybudována jednoduchá úzkokolejná dráha o celkové délce 72 m. Není pochyb, že sklepy od počátku sloužily pro obchod vínem, které bylo do Brna dováženo z jižní Moravy i ze vzdálenějších krajů.
Kdy došlo k ukončení užívání sklepů pro vinařské účely není jasné – vzhledem k pravděpodobnému vybudování drážky před polovinou 20. století to mohlo být po 2. světové válce nebo v období socializmu, kdy prožila vinná kultura v Brně úpadek. Nalezená skleněná leptaná cedule ve sklepě nicméně prozrazuje, že sklep sloužil ke skladování potravin ještě v době národního podniku Brněnský velkoobchod potravinářským zbožím, tedy v 50. létech 20. století a zřejmě i později. Zřejmé je, že dům č. 98 již svému účelu s jistotou nesloužil v 90. létech 20. století. Po roce 2000 byl dům opuštěn a mezi léty 2004 a 2007 došlo k jeho demolici. Sklepy zůstaly zachovány, ačkoliv vstup byl zasypán a znovu zpřístupněn až v březnu roku 2026 v souvislosti s připravovanou novou výstavbou. Je pravděpodobné, že v jejím důsledku dojde ke zničení sklepa, tak, jak se tomu stalo u ostatních vinných sklepů na Hlinkách.
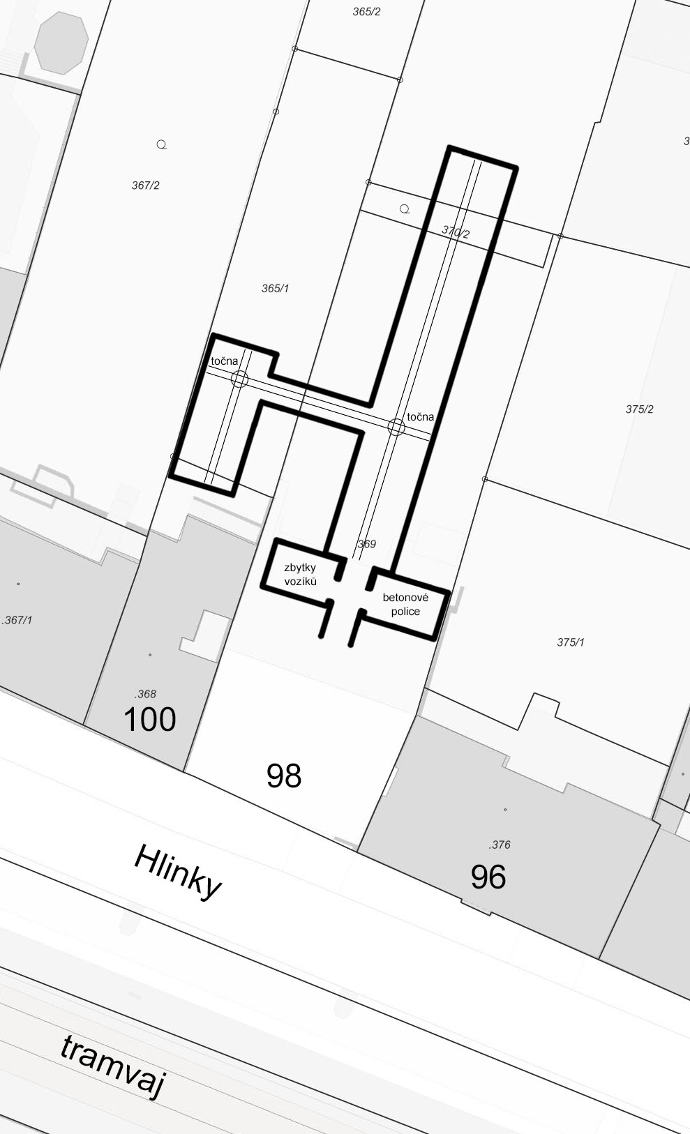
 | | Plánek sklepů za domy Hlinky 98 a Hlinky 100. |
Popis
Sklep za domem č. 98 je tvořen přístupovou svážnou chodbou o délce cca 8 m, ze které odbočují doleva a doprava dva menší sklepy o šířce okolo 4 m a délce okolo 5,5 m a 6,2 m. Zhruba centrálně pak navazuje na přístupovou chodbu hlavní síň sklepa o šířce 5,7 m a délce 38,3 m, sklenutá valenou cihlovou klenbou s vrcholem ve výše 3,6 m. Poněkud mimo podélnou osu sklepa je v sekundárně dobudované betonové podlaze zapuštěna průmyslová drážka o rozchodu 600 mm, po které se pohybovaly dva ručně tlačené ocelové vozíky s rámovými podvozky důlního typu, sloužící pro přepravu vína (pravděpodobně spíš v lahvích, ale v průběhu let byly ve sklepě možná ukládány i sudy, případně jiná balení potravin).
Ve vzdálenosti 12 m od ústí přístupové chodby odbočuje v pravém úhlu z hlavního sálu chodba o šířce 2,0 m a výšce 2,3 m, která byla pravděpodobně zbudována v rámci propojení sklepů před nebo za 2. světové války. Spojovací chodba ústí do uzavřeného sklepa rovnoběžného s hlavním sálem o délce 12,7 m, šířce 5,3 m a výšce 3,5 m. Jde zřejmě o původní sklep domu č. 100, který byl od podzemí pod domem dodatečně oddělen a připojen ke sklepu domu č. 98 (oddělení mohlo nastat až později po propojení obou sklepů, zejména pokud bylo cílem vybudování spojovací chodby válečné nařízení o dobudování únikových východů z protileteckých krytů).
Spojovací chodbou i sklepem za domem č. 100 prochází rovněž úzkorozchodná kolej, přičemž na obou kříženích s kolejemi ve sklepních sálech se nacházely točny s ocelovým talířem pro možnost manuálního otočení vozíku naloženého lahvemi s vínem. Do obou menších sklepů se vstupy z přístupové chodby nebyly koleje zavedeny. Sklep umístěný poněkud východněji (od vstupu vpravo) byl dovybaven dvěma patry betonových polic. Sklep umístěný západněji byl prázdný, nicméně po demolici domu byly v roce 2007 oba tyto menší sklepy zasypány sutí z bouraného domu a v západnějším sklepě našly své místo posledního odpočinku i zbytky točen a vozíků, oddávající se zde následujících 20 let poklidnému rezivění.
V roce 2026, tedy po 192 letech od vybudování sklepa, byl v rámci přípravy na stavbu zasypaný sklep odkryt a zpřístupněn. Vzhledem k započatému vyklízení prostor tak lze očekávat, že v dohledné době dojde k likvidaci téměř dvě století starého podzemí.
 | | Světlo se line z dodatečně vybudované 10 m dlouhé spojovací chodby, která propojila železniční tratě ve sklepech za domy č. 98 a 100. |
|
 | | Pohled z opačné strany na demontovanou točnu a vyčištěný hlavní sál sklepa za někdejším domem č. 98. |
|
 | | Na poškozené kamenné desce s vročením nad vstupem do hlavního sálu čteme s troškou fantazie: Erbauet von Valentin Falkensteiner 1833 und 1834. Přesto, že si nemůžeme být jistí, letopočty dobře zapadají do Falkensteinerovy kariéry – v roce 1829 si totiž pozdější brněnský velkopodnikatel otevřel svůj první obchod na dnešní Masarykově ulici. |
|  | | Spojovací chodba připomínající zmenšený železniční tunel je široká přesně 2 m. Tedy právě tolik, aby se kolem vozíku naloženého vínem na jižní straně prosmýkl člověk. |
|
 | | Sklep za domem č. 100 je výrazně kratší než jeho východní soused. Pro skladování vína byly v obou sklepech vybudovány betonové boxy s čísly od 1 do 44. |
|  | | Také tudy prochází mírně mimo osu sklepa železniční kolej. |
|
 | | Skleněná leptaná cedule Brněnský Velkoobchod Potravinářským Zbožím svědčí o využívání vinných sklepů ještě v období raně socialistických koncernů. Národní podnik BVPZ se později transformoval na Potraviny Brno. |
|  | | Východní ze dvou menších sklípků přístupných ze svážné chodby, která kdysi spojovala dům s jeho sklepem. |
|
 | | A jeho západní souputník. Oba sklípky posloužily v roce 2007 k uložení suti z demolovaného secesního domu č. 98… |
|  | | …západní sklep navíc i k uložení trosek dvou točen a dvou masivních železničních vozíků, které tu sloužily k přepravě vína. |
|
Zdroje
- Janíčková, M., Menšíková, M.: Valentin Franz Johann Joseph Falkensteiner. Dostupné z https://encyklopedie.brna.cz/home-mmb/?acc=profil-osobnosti&load=6856.
Článek na dané téma si můžete přečíst rovněž na serveru Správným směrem.cz
Článek ze dne 21. 3. 2026 byl naposledy upraven dne 28. 3. 2026 a zobrazen celkem 41666×, naposledy dne 14. 4. 2026 v 4:53.
| Texty na téma Sklepy za domem Hlinky 98 | Zpět | Nahoru |
| | Téma: Druhé Brno Každé větší město ubíhá do více rozměrů. Lze se v něm pohybovat po povrchu nebo pronikat do hloubky. Jinak tomu není ani v Brně. Naše běžné každodenní město se… | | Téma: Sklepy za domem Hlinky 54
Článek o sklepeních za domem Hlinky č. 54 v Brně je v přípravě.
… | | Téma: Sklepy za domem Hlinky 62
Ačkoliv patří dům č. 62 na ulici Hlinky v Brně mezi ty užší v uliční řadě, skrývá se také za ním rozsáhlý systém sklepů. Ten nejen, že zasahuje pod sousedn… | | Téma: Sklepy za domem Hlinky 64
Sklepy za domem Hlinky č. 64 v Brně tvoří menší spletitý labyrint, který byl navíc v různých obdobích propojen se sklepy vedlejších domů. Původním účelem s… | | Téma: Sklepy za domem Hlinky 74
Za domem a pod domem Hlinky 74 v Brně se nachází rozměrný vinný sklep tvořený řadou oddělených zaklenutých prostor. Dodatečně byla ze sklepa proražena také… | | Téma: Brněnské podzemí
Jako druhé největší české město má Brno co nabídnout nejen nad zemí, ale také pod ní. Nejde jen o známé kasematy na Špilberku nebo na počátku 21. století zpř… | |
|